シーアイハイツ和光K棟 

埼玉県和光市本町

No.96323033

5,990万円

間取り
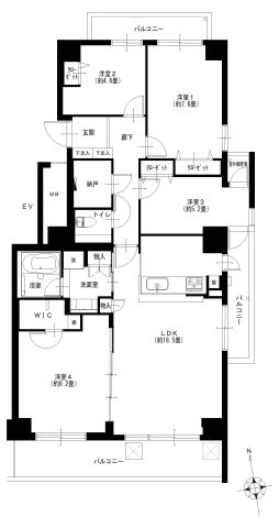
4LDK
専有面積
99.97㎡ (30.24坪)
築年月
昭和59年
3月
方角

リノベーション内容

2025/5 キッチン・浴室・トイレ・壁・床・全室・給排水管・給湯器

物件概要

物件名
シーアイハイツ和光K棟 
所在地
埼玉県和光市本町 ( 周辺地図
交通
  • 東武東上線和光市駅 徒歩9分
  • 有楽町線和光市駅 徒歩9分
  • 副都心線和光市駅 徒歩9分
価格
5,990万円
間取り
4LDK
専有面積
99.97㎡ (30.24坪)
バルコニー
面積
20.66㎡ (6.24坪)
構造・
階建て
鉄骨鉄筋コンクリート造 地上15階建て
所在階
9階
用途地域
第一種住居
土地権利
所有権
総戸数
56戸
築年月
昭和59年3月
管理費
月額16,300円
修繕積立金
月額16,090円
その他
費用
自治会費月:300円
組合費月:100円
管理形態
管理会社に全部委託
引渡し
相談
取引態様
売主
おすすめ
ポイント
日当たり良好 / リノベーション済 / フローリング / バルコニー / エレベーター / 3面バルコニー / 照明器具付き / 駐輪場 / バイク置場あり / 敷地内ごみ置き場 / 食器洗い乾燥機 / システムキッチン / 対面式キッチン / バス・トイレ別 / 追焚機能浴室 / 浴室乾燥機 / 温水洗浄便座 / 洗髪洗面化粧台 / ウォークインクロゼット / 収納豊富 / インターネット対応 / TVモニタ付インターホン / 防犯カメラ / 24時間ゴミ出し可
備考

ライフインフォメーション・地図

  • ・ローソン 和光本町店 400m
  • ・サミットストア シーアイハイツ和光店 300m
  • ・イトーヨーカドー 和光店 950m
  • ・EQUiA PREMIE和光 800m
  • ・トモズ シーアイハイツ和光店 300m
  • ・キッズエイド和光保育園 300m
  • ・和光市立本町小学校 250m
  • ・和光市立第二中学校 750m
  • ・本町児童公園 220m
  • ・菅野病院・本館 300m
  • ・和光市役所 550m
  • ・和光市図書館 300m

住宅ローンシミュレーション

  • 物件価格

    万円

  • 自己資金(頭金)

    万円

  • ボーナス支払い額

    万円

  • 借入期間

  • 金利(年利)

    %

  • 税込年収

    万円

月々支払額
-
返済年率
- %
  • ※シミュレーションによる試算結果は、お客さまにご入力いただいた借入条件にもとづき算出した参考値で簡易的なものです。
    実際の返済額とは異なります。
  • ※このシミュレーションは元利均等返済で試算しています
  • ※シミュレーション結果は、あくまでも目安で概算になります。実際にローン契約をする際は、詳細を金融機関にご確認ください。
  • ※実際のローン契約時には諸費用・税金(手数料や印紙税、保証料など)が別途かかりますので、契約の際にご確認ください。
  • ※シミュレーションを利用しそれが原因で利用者が受けたいかなる損害についても当社は一切責任を負いません。あらかじめご了承ください。
お問い合わせリストに追加

CONTACT

ご質問やご相談を承ります。
どうぞお気軽にお問い合わせください。

おすすめ物件情報や個別相談