ライオンズコート市川 

千葉県市川市大洲4丁目

No.95460797

4,090万円

間取り
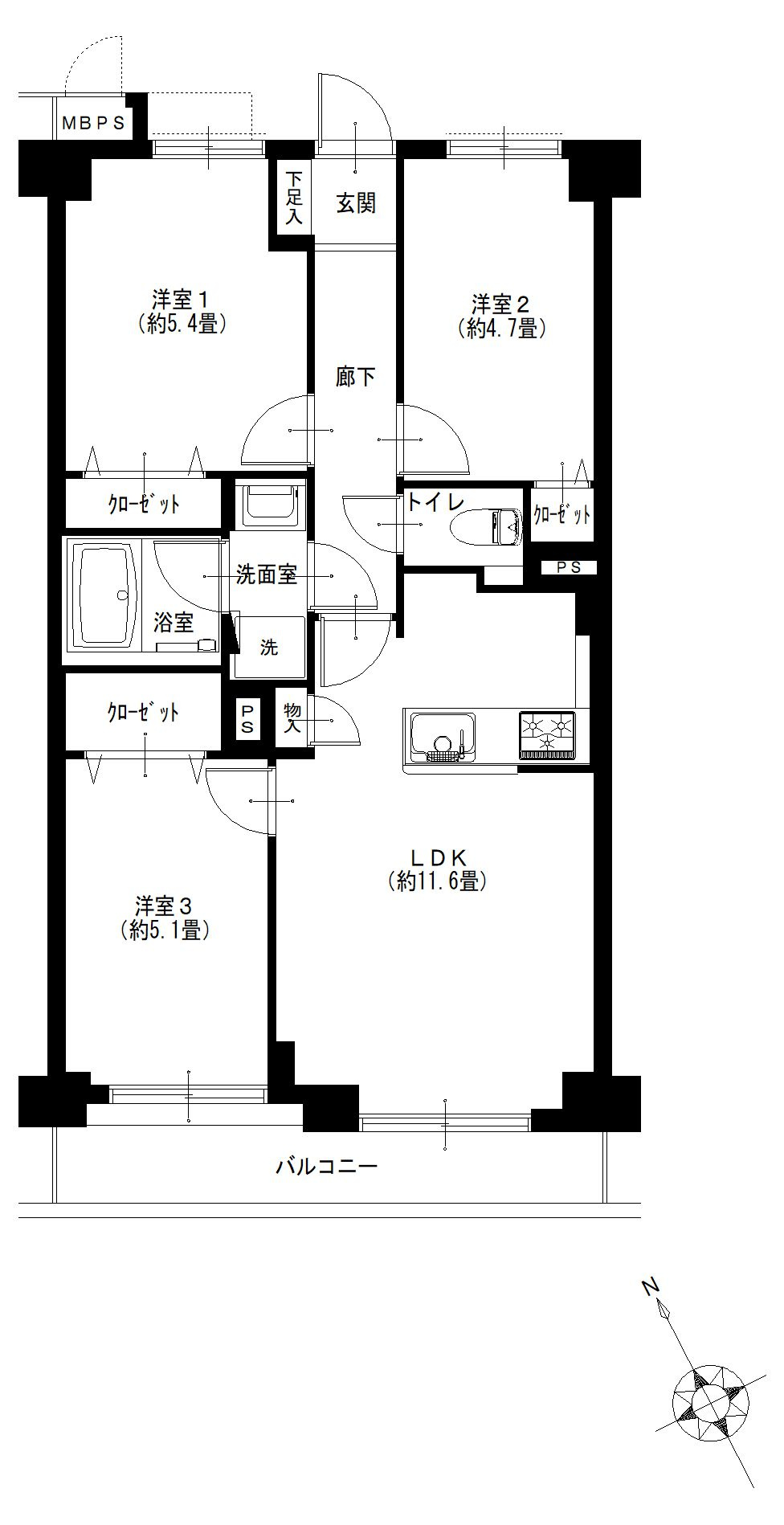
3LDK
専有面積
58.93㎡ (17.82坪)
築年月
平成8年
5月
方角
南西

リノベーション内容

2025/8 キッチン・浴室・トイレ・壁・床・全室・給排水管・給湯器

物件概要

物件名
ライオンズコート市川 
所在地
千葉県市川市大洲4丁目 ( 周辺地図
交通
  • 総武線市川駅 徒歩13分
  • 総武本線市川駅 徒歩13分
  • 京成本線市川真間駅 徒歩16分
価格
4,090万円
間取り
3LDK
専有面積
58.93㎡ (17.82坪)
バルコニー
面積
6.03㎡ (1.82坪)
構造・
階建て
鉄筋コンクリート造 地上4階建て
所在階
2階
用途地域
第一種住居
土地権利
所有権
総戸数
29戸
築年月
平成8年5月
管理費
月額12,700円
修繕積立金
月額14,730円
その他
費用
管理形態
管理会社に全部委託
引渡し
相談
取引態様
売主
おすすめ
ポイント
リノベーション済 / フローリング / バルコニー / エレベーター / 照明器具付き / 駐輪場 / 外観タイル張り / システムキッチン / 対面式キッチン / バス・トイレ別 / 追焚機能浴室 / 浴室乾燥機 / 温水洗浄便座 / 洗髪洗面化粧台 / CS / BS / CATV / インターネット対応 / オートロック / TVモニタ付インターホン / 宅配ボックス / 防犯カメラ
備考

ライフインフォメーション・地図

  • ・ローソン 市川新田三丁目南店 190m
  • ・セブンイレブン 市川大洲店 240m
  • ・ビッグ・エー市川新田店 350m
  • ・サンドラッグ 市川新田店 400m
  • ・まなびの森保育園市川 160m
  • ・市川市立大洲小学校 150m
  • ・市川市立大洲中学校 90m
  • ・市川駅南公園 160m

住宅ローンシミュレーション

  • 物件価格

    万円

  • 自己資金(頭金)

    万円

  • ボーナス支払い額

    万円

  • 借入期間

  • 金利(年利)

    %

  • 税込年収

    万円

月々支払額
-
返済年率
- %
  • ※シミュレーションによる試算結果は、お客さまにご入力いただいた借入条件にもとづき算出した参考値で簡易的なものです。
    実際の返済額とは異なります。
  • ※このシミュレーションは元利均等返済で試算しています
  • ※シミュレーション結果は、あくまでも目安で概算になります。実際にローン契約をする際は、詳細を金融機関にご確認ください。
  • ※実際のローン契約時には諸費用・税金(手数料や印紙税、保証料など)が別途かかりますので、契約の際にご確認ください。
  • ※シミュレーションを利用しそれが原因で利用者が受けたいかなる損害についても当社は一切責任を負いません。あらかじめご了承ください。
お問い合わせリストに追加

CONTACT

ご質問やご相談を承ります。
どうぞお気軽にお問い合わせください。

おすすめ物件情報や個別相談