ザ・ステージオ ウエストレジデンス 

東京都足立区西新井栄町1丁目

No.99135932

7,390万円

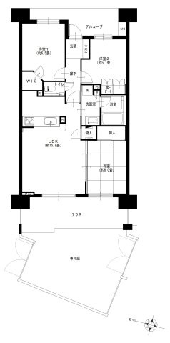
間取り
3LDK
専有面積
73.45㎡ (22.21坪)
築年月
平成18年
12月
方角
西

リノベーション内容

2026/1 キッチン・浴室・トイレ・壁・床・給湯器

物件概要

物件名
ザ・ステージオ ウエストレジデンス 
所在地
東京都足立区西新井栄町1丁目 ( 周辺地図
交通
  • 東武伊勢崎線西新井駅 徒歩4分
  • 東武大師線大師前駅 徒歩10分
  • 日暮里舎人ライナー江北駅 徒歩22分
価格
7,390万円
間取り
3LDK
専有面積
73.45㎡ (22.21坪)
バルコニー
面積
(0坪)
構造・
階建て
鉄筋コンクリート造 地上20階建て
所在階
1階
用途地域
近隣商業地域/第一種住居
土地権利
所有権
総戸数
550戸
築年月
平成18年12月
管理費
月額15,870円
修繕積立金
月額17,080円
その他
費用
専用庭使用料月:890円
管理形態
管理会社に全部委託
引渡し
相談
取引態様
売主
おすすめ
ポイント
ペット相談 / リノベーション済 / キッズルーム / フローリング / 専用庭 / エレベーター / 照明器具付き / 駐輪場 / バイク置場あり / 外観タイル張り / 食器洗い乾燥機 / システムキッチン / 対面式キッチン / バス・トイレ別 / 追焚機能浴室 / 浴室乾燥機 / 温水洗浄便座 / 洗髪洗面化粧台 / 床暖房 / ウォークインクロゼット / トランクルーム / インターネット対応 / オートロック / TVモニタ付インターホン / 宅配ボックス / 防犯カメラ / 24時間有人管理
備考

ライフインフォメーション・地図

  • ・セブンイレブン 足立西新井栄町1丁目店 400m
  • ・イトーヨーカドー アリオ西新井店 80m
  • ・アリオ西新井 80m
  • ・パサージオ西新井 290m
  • ・薬マツモトキヨシ パサージオ西新井店 220m
  • ・足立区立栗原小学校 80m
  • ・足立区立第七中学校 350m
  • ・東京洪誠病院 280m
  • ・西新井さかえ公園 270m

住宅ローンシミュレーション

  • 物件価格

    万円

  • 自己資金(頭金)

    万円

  • ボーナス支払い額

    万円

  • 借入期間

  • 金利(年利)

    %

  • 税込年収

    万円

月々支払額
-
返済年率
- %
  • ※シミュレーションによる試算結果は、お客さまにご入力いただいた借入条件にもとづき算出した参考値で簡易的なものです。
    実際の返済額とは異なります。
  • ※このシミュレーションは元利均等返済で試算しています
  • ※シミュレーション結果は、あくまでも目安で概算になります。実際にローン契約をする際は、詳細を金融機関にご確認ください。
  • ※実際のローン契約時には諸費用・税金(手数料や印紙税、保証料など)が別途かかりますので、契約の際にご確認ください。
  • ※シミュレーションを利用しそれが原因で利用者が受けたいかなる損害についても当社は一切責任を負いません。あらかじめご了承ください。
お問い合わせリストに追加

CONTACT

ご質問やご相談を承ります。
どうぞお気軽にお問い合わせください。

おすすめ物件情報や個別相談