ライオンズマンション船堀グリーンロード 

東京都江戸川区東小松川4丁目

No.101586943

6,190万円

間取り
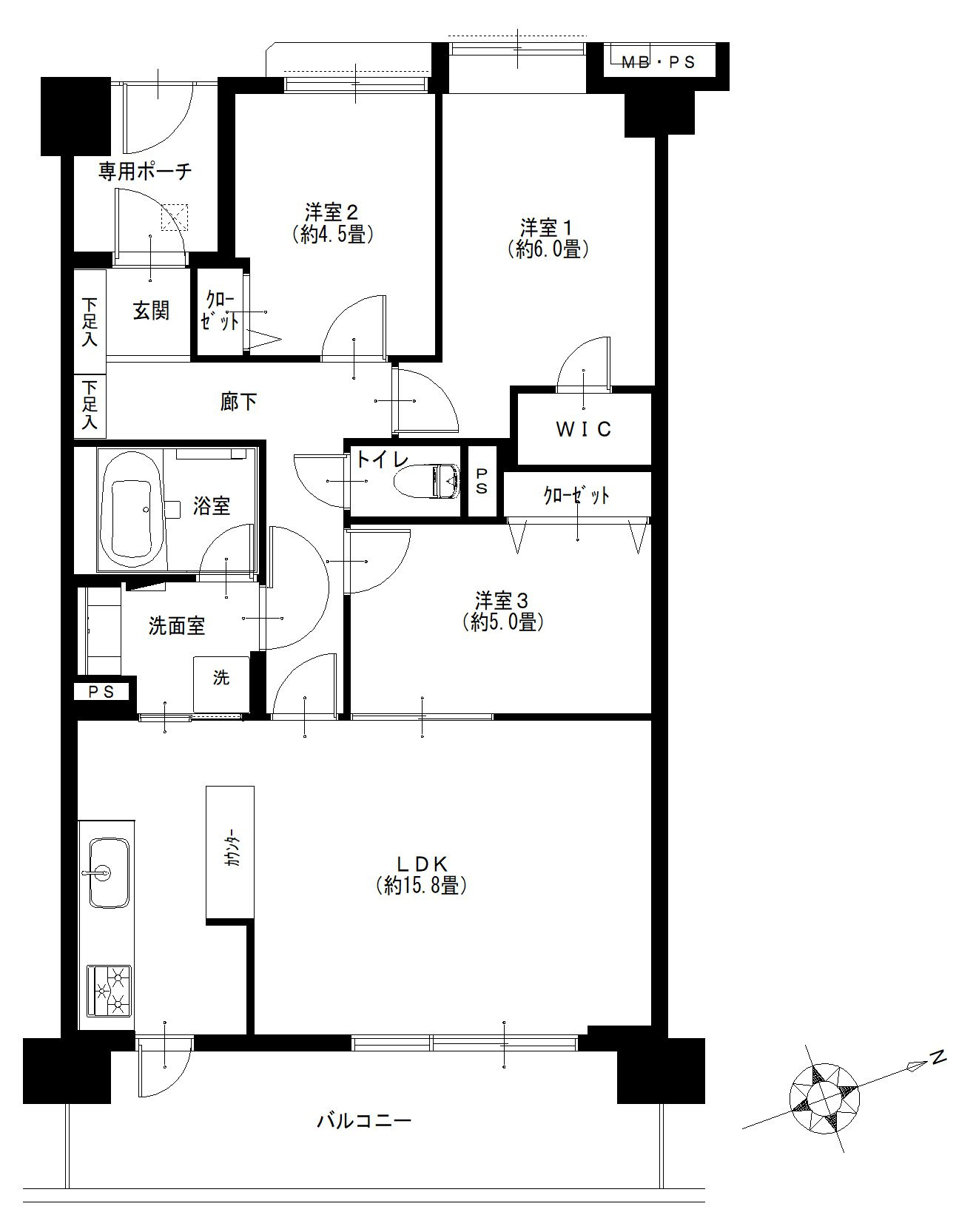
3LDK
専有面積
71.20㎡ (21.53坪)
築年月
平成13年
5月
方角
南東

リノベーション内容

2026/4 キッチン・浴室・トイレ・壁・床・全室

物件概要

物件名
ライオンズマンション船堀グリーンロード 
所在地
東京都江戸川区東小松川4丁目 ( 周辺地図
交通
  • 都営新宿線船堀駅 徒歩8分
  • 都営新宿線一之江駅 徒歩23分
価格
6,190万円
間取り
3LDK
専有面積
71.20㎡ (21.53坪)
バルコニー
面積
11.73㎡ (3.54坪)
構造・
階建て
鉄筋コンクリート造 地上8階建て
所在階
6階
用途地域
近隣商業地域/準工業
土地権利
所有権
総戸数
46戸
築年月
平成13年5月
管理費
月額14,220円
修繕積立金
月額20,650円
その他
費用
管理形態
管理会社に全部委託
引渡し
相談
取引態様
売主
おすすめ
ポイント
ペット相談 / リノベーション済 / フローリング / バルコニー / エレベーター / 照明器具付き / 駐輪場 / バイク置場あり / 外観タイル張り / システムキッチン / バス・トイレ別 / 追焚機能浴室 / 浴室乾燥機 / 温水洗浄便座 / 洗髪洗面化粧台 / ウォークインクロゼット / CS / BS / CATV / インターネット対応 / オートロック / TVモニタ付インターホン / 宅配ボックス / 防犯カメラ
備考
※修繕積立金:2026年4月から月額27,090円に改定予定
※専用ポーチ面積:3.60平米

ライフインフォメーション・地図

  • ・セブンイレブン 江戸川松江南店 240m
  • ・まいばすけっと 江戸川船堀街道店 240m
  • ・イオンフードスタイル船堀店 700m
  • ・食品館あおば 船堀店 700m
  • ・みのりのわかば保育園船堀分園 350m
  • ・江戸川区立東小松川小学校 500m
  • ・江戸川区立松江第一中学校 100m
  • ・東小松川南公園 350m

住宅ローンシミュレーション

  • 物件価格

    万円

  • 自己資金(頭金)

    万円

  • ボーナス支払い額

    万円

  • 借入期間

  • 金利(年利)

    %

  • 税込年収

    万円

月々支払額
-
返済年率
- %
  • ※シミュレーションによる試算結果は、お客さまにご入力いただいた借入条件にもとづき算出した参考値で簡易的なものです。
    実際の返済額とは異なります。
  • ※このシミュレーションは元利均等返済で試算しています
  • ※シミュレーション結果は、あくまでも目安で概算になります。実際にローン契約をする際は、詳細を金融機関にご確認ください。
  • ※実際のローン契約時には諸費用・税金(手数料や印紙税、保証料など)が別途かかりますので、契約の際にご確認ください。
  • ※シミュレーションを利用しそれが原因で利用者が受けたいかなる損害についても当社は一切責任を負いません。あらかじめご了承ください。
お問い合わせリストに追加

CONTACT

ご質問やご相談を承ります。
どうぞお気軽にお問い合わせください。

おすすめ物件情報や個別相談