セザール京成小岩 

東京都江戸川区北小岩6丁目

No.98398006

4,490万円

間取り
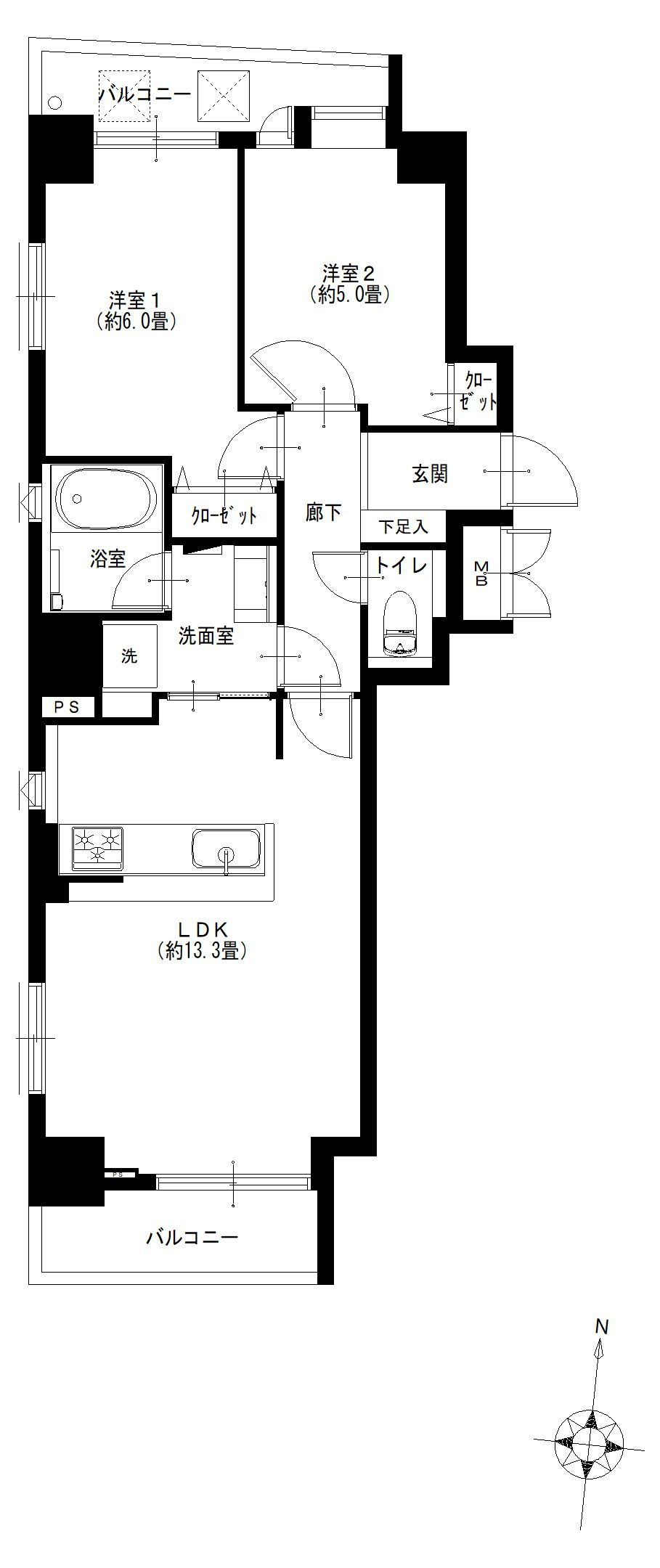
2LDK
専有面積
54.76㎡ (16.56坪)
築年月
平成12年
9月
方角

リノベーション内容

2025/12 キッチン・浴室・トイレ・壁・床・全室・給排水管

物件概要

物件名
セザール京成小岩 
所在地
東京都江戸川区北小岩6丁目 ( 周辺地図
交通
  • 京成本線京成小岩駅 徒歩1分
  • 総武線小岩駅 徒歩16分
  • 北総鉄道新柴又駅 徒歩16分
価格
4,490万円
間取り
2LDK
専有面積
54.76㎡ (16.56坪)
バルコニー
面積
7.99㎡ (2.41坪)
構造・
階建て
鉄筋コンクリート造 地上9階建て
所在階
4階
用途地域
商業
土地権利
所有権
総戸数
22戸
築年月
平成12年9月
管理費
月額13,230円
修繕積立金
月額11,060円
その他
費用
管理形態
管理会社に全部委託
引渡し
相談
取引態様
売主
おすすめ
ポイント
ペット相談 / リノベーション済 / フローリング / バルコニー / 出窓 / エレベーター / 2面バルコニー / 両面バルコニー / 照明器具付き / 駐輪場 / 外観タイル張り / システムキッチン / 対面式キッチン / バス・トイレ別 / 追焚機能浴室 / 浴室乾燥機 / 温水洗浄便座 / 洗髪洗面化粧台 / インターネット対応 / オートロック / TVモニタ付インターホン / 宅配ボックス
備考

ライフインフォメーション・地図

  • ・ファミリーマート 京成小岩駅東店 30m
  • ・セブンイレブン 北小岩6丁目店 150m
  • ・グルメシティ京成小岩店 110m
  • ・くすりの福太郎京成小岩店 170m
  • ・江戸川区立上小岩小学校 500m
  • ・江戸川区立小岩第三中学校 700m
  • ・小岩メディカルセンター 90m

住宅ローンシミュレーション

  • 物件価格

    万円

  • 自己資金(頭金)

    万円

  • ボーナス支払い額

    万円

  • 借入期間

  • 金利(年利)

    %

  • 税込年収

    万円

月々支払額
-
返済年率
- %
  • ※シミュレーションによる試算結果は、お客さまにご入力いただいた借入条件にもとづき算出した参考値で簡易的なものです。
    実際の返済額とは異なります。
  • ※このシミュレーションは元利均等返済で試算しています
  • ※シミュレーション結果は、あくまでも目安で概算になります。実際にローン契約をする際は、詳細を金融機関にご確認ください。
  • ※実際のローン契約時には諸費用・税金(手数料や印紙税、保証料など)が別途かかりますので、契約の際にご確認ください。
  • ※シミュレーションを利用しそれが原因で利用者が受けたいかなる損害についても当社は一切責任を負いません。あらかじめご了承ください。
お問い合わせリストに追加

CONTACT

ご質問やご相談を承ります。
どうぞお気軽にお問い合わせください。

おすすめ物件情報や個別相談