日神パレステージ立川 

東京都立川市錦町1丁目

No.96209360

4,690万円

間取り
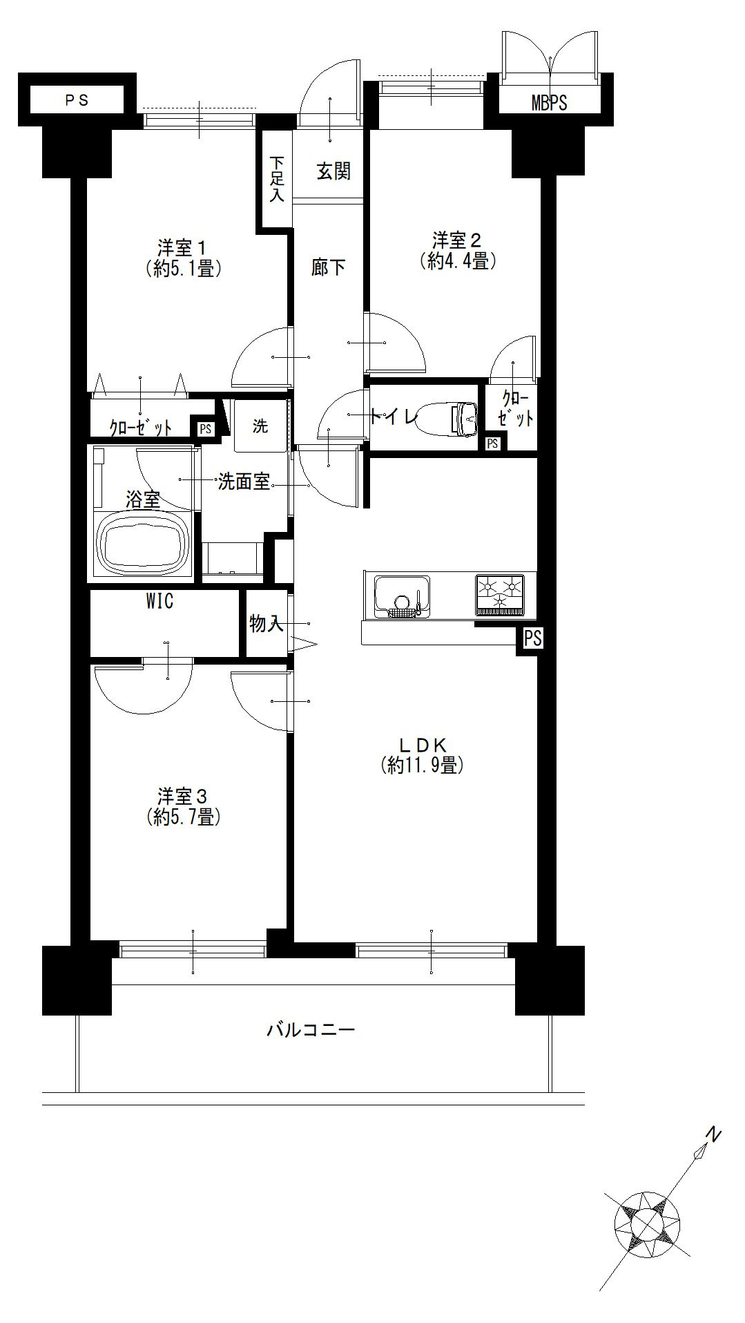
3LDK
専有面積
59.16㎡ (17.89坪)
築年月
平成10年
8月
方角
南東

リノベーション内容

2025/6 キッチン・浴室・トイレ・壁・床・全室・給排水管

物件概要

物件名
日神パレステージ立川 
所在地
東京都立川市錦町1丁目 ( 周辺地図
交通
  • 中央線立川駅 徒歩9分
  • 多摩都市モノレール立川南駅 徒歩10分
  • 南武線西国立駅 徒歩11分
価格
4,690万円
間取り
3LDK
専有面積
59.16㎡ (17.89坪)
バルコニー
面積
10.44㎡ (3.15坪)
構造・
階建て
鉄骨鉄筋コンクリート造 地上12階建て
所在階
5階
用途地域
商業
土地権利
所有権
総戸数
45戸
築年月
平成10年8月
管理費
月額11,800円
修繕積立金
月額11,760円
その他
費用
管理形態
管理会社に全部委託
引渡し
相談
取引態様
売主
おすすめ
ポイント
日当たり良好 / リノベーション済 / フローリング / バルコニー / エレベーター / 照明器具付き / 駐輪場 / バイク置場あり / 外観タイル張り / 食器洗い乾燥機 / システムキッチン / 対面式キッチン / バス・トイレ別 / 追焚機能浴室 / 浴室乾燥機 / 温水洗浄便座 / 洗髪洗面化粧台 / ウォークインクロゼット / 収納豊富 / インターネット対応 / オートロック / TVモニタ付インターホン / 宅配ボックス / 防犯カメラ
備考

ライフインフォメーション・地図

  • ・ローソン 錦町一丁目店 210m
  • ・サミットストア 羽衣いちょう通り店 730m
  • ・グランデュオ立川 600m
  • ・LUMINE(ルミネ)立川 720m
  • ・スギ薬局 立川錦町店 220m
  • ・西国立保育園分園 500m
  • ・立川市立第三小学校 600m
  • ・錦第二公園 210m
  • ・立川病院 550m

住宅ローンシミュレーション

  • 物件価格

    万円

  • 自己資金(頭金)

    万円

  • ボーナス支払い額

    万円

  • 借入期間

  • 金利(年利)

    %

  • 税込年収

    万円

月々支払額
-
返済年率
- %
  • ※シミュレーションによる試算結果は、お客さまにご入力いただいた借入条件にもとづき算出した参考値で簡易的なものです。
    実際の返済額とは異なります。
  • ※このシミュレーションは元利均等返済で試算しています
  • ※シミュレーション結果は、あくまでも目安で概算になります。実際にローン契約をする際は、詳細を金融機関にご確認ください。
  • ※実際のローン契約時には諸費用・税金(手数料や印紙税、保証料など)が別途かかりますので、契約の際にご確認ください。
  • ※シミュレーションを利用しそれが原因で利用者が受けたいかなる損害についても当社は一切責任を負いません。あらかじめご了承ください。
お問い合わせリストに追加

CONTACT

ご質問やご相談を承ります。
どうぞお気軽にお問い合わせください。

おすすめ物件情報や個別相談