恒陽マンション 

神奈川県横浜市神奈川区台町

No.98956645

4,990万円

間取り
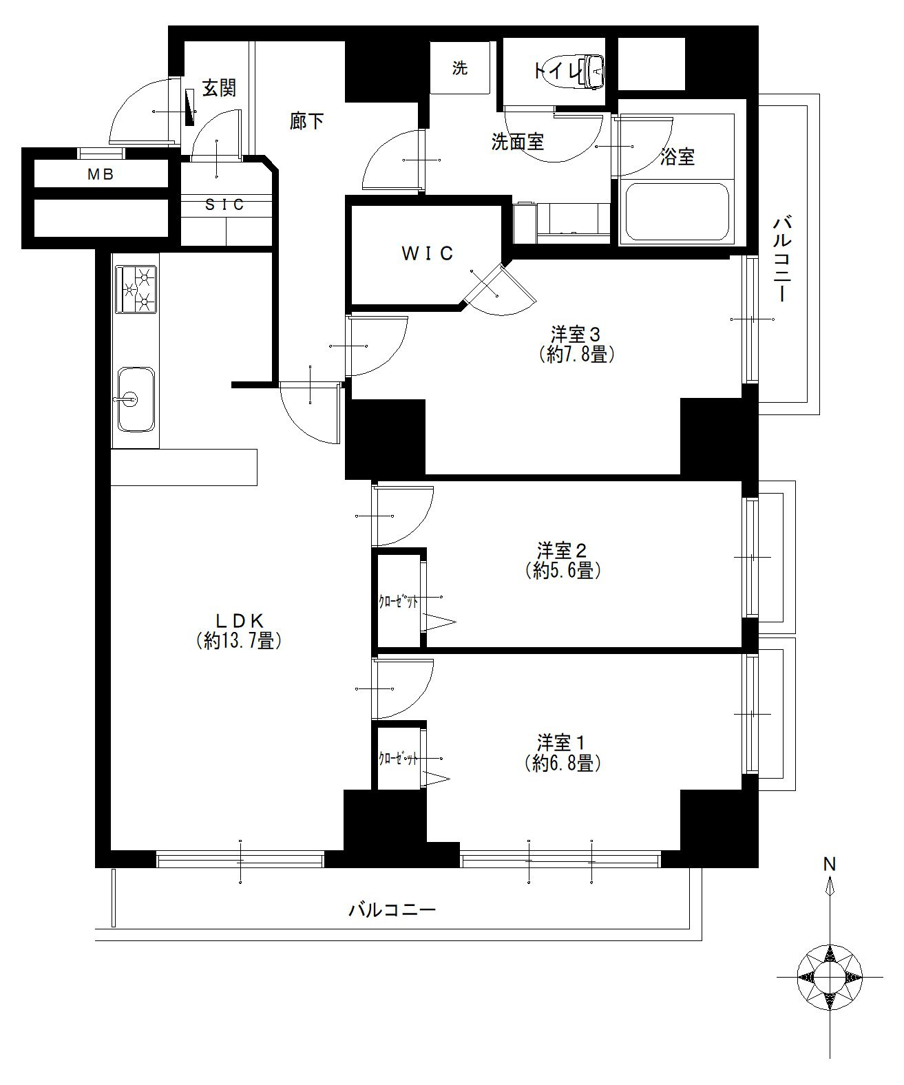
3LDK
専有面積
80.70㎡ (24.41坪)
築年月
昭和47年
3月
方角

リノベーション内容

2025/10 キッチン・浴室・トイレ・壁・床・全室・給排水管・給湯器

物件概要

物件名
恒陽マンション 
所在地
神奈川県横浜市神奈川区台町 ( 周辺地図
交通
  • 京浜東北線横浜駅 徒歩7分
  • 東急東横線横浜駅 徒歩7分
  • 京急本線神奈川駅 徒歩6分
価格
4,990万円
間取り
3LDK
専有面積
80.70㎡ (24.41坪)
バルコニー
面積
10.26㎡ (3.1坪)
構造・
階建て
鉄骨鉄筋コンクリート造 地上10階建て
所在階
3階
用途地域
商業
土地権利
所有権
総戸数
54戸
築年月
昭和47年3月
管理費
月額14,800円
修繕積立金
月額22,200円
その他
費用
町内会費月:200円
管理形態
管理会社に全部委託
引渡し
相談
取引態様
売主
おすすめ
ポイント
ペット相談 / リノベーション済 / フローリング / バルコニー / エレベーター / 2面バルコニー / 照明器具付き / 駐輪場 / バイク置場あり / システムキッチン / バス・トイレ別 / 追焚機能浴室 / 浴室乾燥機 / 温水洗浄便座 / 洗髪洗面化粧台 / ウォークインクロゼット / ウォークインシューズクロゼット / トランクルーム / CS / BS / CATV / インターネット対応 / オートロック / TVモニタ付インターホン / 宅配ボックス
備考

ライフインフォメーション・地図

  • ・ローソン 鶴屋町二丁目店 300m
  • ・まいばすけっと 横浜駅北店 230m
  • ・横浜モアーズ 550m
  • ・NEWoMan YOKOHAMA(ニュウマン横浜) 650m
  • ・横浜高島屋 700m
  • ・ヨドバシカメラ マルチメディア横浜 500m
  • ・横浜市立青木小学校 600m
  • ・上台町公園 220m

住宅ローンシミュレーション

  • 物件価格

    万円

  • 自己資金(頭金)

    万円

  • ボーナス支払い額

    万円

  • 借入期間

  • 金利(年利)

    %

  • 税込年収

    万円

月々支払額
-
返済年率
- %
  • ※シミュレーションによる試算結果は、お客さまにご入力いただいた借入条件にもとづき算出した参考値で簡易的なものです。
    実際の返済額とは異なります。
  • ※このシミュレーションは元利均等返済で試算しています
  • ※シミュレーション結果は、あくまでも目安で概算になります。実際にローン契約をする際は、詳細を金融機関にご確認ください。
  • ※実際のローン契約時には諸費用・税金(手数料や印紙税、保証料など)が別途かかりますので、契約の際にご確認ください。
  • ※シミュレーションを利用しそれが原因で利用者が受けたいかなる損害についても当社は一切責任を負いません。あらかじめご了承ください。
お問い合わせリストに追加

CONTACT

ご質問やご相談を承ります。
どうぞお気軽にお問い合わせください。

おすすめ物件情報や個別相談