パークハイム横濱山手 

神奈川県横浜市中区打越

No.98021478

5,790万円

間取り
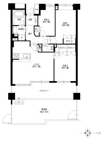
3LDK
専有面積
68.84㎡ (20.82坪)
築年月
平成12年
11月
方角

リノベーション内容

2025/9 キッチン・浴室・トイレ・壁・床・全室・給湯器

物件概要

物件名
パークハイム横濱山手 
所在地
神奈川県横浜市中区打越 ( 周辺地図
交通
  • 京浜東北線石川町駅 徒歩13分
  • ブルーライン伊勢佐木長者町駅 徒歩15分
  • 京浜東北線関内駅 徒歩19分
価格
5,790万円
間取り
3LDK
専有面積
68.84㎡ (20.82坪)
バルコニー
面積
14.59㎡ (4.41坪)
構造・
階建て
鉄筋コンクリート造 地上10階建て
所在階
1階
用途地域
第一種住居
土地権利
所有権
総戸数
127戸
築年月
平成12年11月
管理費
月額14,350円
修繕積立金
月額17,160円
その他
費用
専用庭使用料月:630円
管理形態
管理会社に全部委託
引渡し
相談
取引態様
売主
おすすめ
ポイント
ペット相談 / リノベーション済 / フローリング / 専用庭 / バルコニー / エレベーター / 照明器具付き / 駐輪場 / バイク置場あり / 外観タイル張り / システムキッチン / 対面式キッチン / バス・トイレ別 / 追焚機能浴室 / 浴室乾燥機 / 温水洗浄便座 / 洗髪洗面化粧台 / 床暖房 / トランクルーム / 収納豊富 / インターネット対応 / オートロック / TVモニタ付インターホン / 宅配ボックス / 防犯カメラ
備考
※専用庭面積:約21平米

ライフインフォメーション・地図

  • ・ローソン 山元町一丁目店 550m
  • ・まいばすけっと 永楽町東橋店 900m
  • ・横浜掖済会病院 850m
  • ・打越保育園 240m
  • ・横浜市立石川小学校 400m
  • ・横浜市立平楽中学校 550m
  • ・唐沢公園 360m

住宅ローンシミュレーション

  • 物件価格

    万円

  • 自己資金(頭金)

    万円

  • ボーナス支払い額

    万円

  • 借入期間

  • 金利(年利)

    %

  • 税込年収

    万円

月々支払額
-
返済年率
- %
  • ※シミュレーションによる試算結果は、お客さまにご入力いただいた借入条件にもとづき算出した参考値で簡易的なものです。
    実際の返済額とは異なります。
  • ※このシミュレーションは元利均等返済で試算しています
  • ※シミュレーション結果は、あくまでも目安で概算になります。実際にローン契約をする際は、詳細を金融機関にご確認ください。
  • ※実際のローン契約時には諸費用・税金(手数料や印紙税、保証料など)が別途かかりますので、契約の際にご確認ください。
  • ※シミュレーションを利用しそれが原因で利用者が受けたいかなる損害についても当社は一切責任を負いません。あらかじめご了承ください。
お問い合わせリストに追加

CONTACT

ご質問やご相談を承ります。
どうぞお気軽にお問い合わせください。

おすすめ物件情報や個別相談