ミオカステーロ横濱関内 

神奈川県横浜市中区山下町

No.99717423

7,990万円

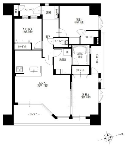
間取り
2LDK
+1S(納戸)
専有面積
78.13㎡ (23.63坪)
築年月
平成16年
5月
方角
南東

リノベーション内容

2025/10 キッチン・浴室・トイレ・壁・床・全室・給湯器

物件概要

物件名
ミオカステーロ横濱関内 
所在地
神奈川県横浜市中区山下町 ( 周辺地図
交通
  • 京浜東北線関内駅 徒歩6分
  • 根岸線石川町駅 徒歩6分
  • みなとみらい線日本大通り駅 徒歩7分
価格
7,990万円
間取り
2LDK
+1S(納戸)
専有面積
78.13㎡ (23.63坪)
バルコニー
面積
13.67㎡ (4.13坪)
構造・
階建て
鉄筋コンクリート造 地上10階建て
所在階
4階
用途地域
商業
土地権利
所有権
総戸数
64戸
築年月
平成16年5月
管理費
月額14,060円
修繕積立金
月額5,840円
その他
費用
インターホン分担金・口座振替手数料月:784円
管理協力金(外部所有者のみ)月:1,000円
CATV利用料・インターネット利用料月:770円
管理形態
管理会社に全部委託
引渡し
相談
取引態様
売主
おすすめ
ポイント
ペット相談 / リノベーション済 / フローリング / バルコニー / エレベーター / 2面バルコニー / 照明器具付き / 駐輪場 / アルコーブ / 外観タイル張り / 食器洗い乾燥機 / システムキッチン / 対面式キッチン / バス・トイレ別 / 追焚機能浴室 / 浴室乾燥機 / 温水洗浄便座 / 洗髪洗面化粧台 / 床暖房 / ウォークインクロゼット / 収納豊富 / CATV / インターネット対応 / オートロック / TVモニタ付インターホン / 宅配ボックス / 防犯カメラ
備考
※CATV利用料:月額330円
※インターネット利用料:月額440円

ライフインフォメーション・地図

  • ・ファミリーマート 横浜大桟橋通り店 70m
  • ・まいばすけっと 石川町駅北店 400m
  • ・食品館あおば 元町店 450m
  • ・スギドラッグ 横浜中華街店 350m
  • ・横浜市立元街小学校 1100m
  • ・横浜市立港中学校 180m
  • ・横浜中央病院 400m
  • ・横浜スタジアム 200m
  • ・山下公園 800m

住宅ローンシミュレーション

  • 物件価格

    万円

  • 自己資金(頭金)

    万円

  • ボーナス支払い額

    万円

  • 借入期間

  • 金利(年利)

    %

  • 税込年収

    万円

月々支払額
-
返済年率
- %
  • ※シミュレーションによる試算結果は、お客さまにご入力いただいた借入条件にもとづき算出した参考値で簡易的なものです。
    実際の返済額とは異なります。
  • ※このシミュレーションは元利均等返済で試算しています
  • ※シミュレーション結果は、あくまでも目安で概算になります。実際にローン契約をする際は、詳細を金融機関にご確認ください。
  • ※実際のローン契約時には諸費用・税金(手数料や印紙税、保証料など)が別途かかりますので、契約の際にご確認ください。
  • ※シミュレーションを利用しそれが原因で利用者が受けたいかなる損害についても当社は一切責任を負いません。あらかじめご了承ください。
お問い合わせリストに追加

CONTACT

ご質問やご相談を承ります。
どうぞお気軽にお問い合わせください。

おすすめ物件情報や個別相談