コスモ大師公園南 

神奈川県川崎市川崎区四谷上町

No.96074483

3,290万円

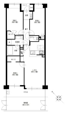
間取り
3LDK
専有面積
68.63㎡ (20.76坪)
築年月
平成11年
11月
方角
南西

リノベーション内容

2025/9 キッチン・浴室・トイレ・壁・床・全室

物件概要

物件名
コスモ大師公園南 
所在地
神奈川県川崎市川崎区四谷上町 ( 周辺地図
交通
  • 東海道本線川崎駅バス21分 「四谷(神奈川県)」 停歩4分
  • 京急大師線東門前駅 徒歩18分
  • 南武線川崎駅バス20分 「四谷(神奈川県)」 停歩4分
価格
3,290万円
間取り
3LDK
専有面積
68.63㎡ (20.76坪)
バルコニー
面積
(0坪)
構造・
階建て
鉄筋コンクリート造 地上5階建て
所在階
1階
用途地域
第二種住居
土地権利
所有権
総戸数
42戸
築年月
平成11年11月
管理費
月額15,099円
修繕積立金
月額16,460円
その他
費用
専用庭使用料月:600円
町会費月:200円
管理形態
管理会社に全部委託
引渡し
相談
取引態様
売主
おすすめ
ポイント
閑静な住宅地 / リノベーション済 / フローリング / 専用庭 / エレベーター / 照明器具付き / 駐輪場 / バイク置場あり / アルコーブ / 外観タイル張り / システムキッチン / 対面式キッチン / バス・トイレ別 / 追焚機能浴室 / 浴室乾燥機 / 温水洗浄便座 / 洗髪洗面化粧台 / 床暖房 / 床下収納 / ウォークインクロゼット / インターネット対応 / オートロック / TVモニタ付インターホン / 宅配ボックス / 防犯カメラ
備考

ライフインフォメーション・地図

  • ・ローソン 川崎池上新町二丁目店 200m
  • ・まいばすけっと 観音2丁目店 800m
  • ・マルエツ 出来野店 950m
  • ・コストコホールセール 川崎倉庫店 500m
  • ・ココカラファイン 川崎四谷上町店 650m
  • ・よつば保育園 270m
  • ・川崎市立四谷小学校 400m
  • ・川崎市立南大師中学校 290m

住宅ローンシミュレーション

  • 物件価格

    万円

  • 自己資金(頭金)

    万円

  • ボーナス支払い額

    万円

  • 借入期間

  • 金利(年利)

    %

  • 税込年収

    万円

月々支払額
-
返済年率
- %
  • ※シミュレーションによる試算結果は、お客さまにご入力いただいた借入条件にもとづき算出した参考値で簡易的なものです。
    実際の返済額とは異なります。
  • ※このシミュレーションは元利均等返済で試算しています
  • ※シミュレーション結果は、あくまでも目安で概算になります。実際にローン契約をする際は、詳細を金融機関にご確認ください。
  • ※実際のローン契約時には諸費用・税金(手数料や印紙税、保証料など)が別途かかりますので、契約の際にご確認ください。
  • ※シミュレーションを利用しそれが原因で利用者が受けたいかなる損害についても当社は一切責任を負いません。あらかじめご了承ください。
お問い合わせリストに追加

CONTACT

ご質問やご相談を承ります。
どうぞお気軽にお問い合わせください。

おすすめ物件情報や個別相談