ダイアパレス川崎元木町 

神奈川県川崎市川崎区元木2丁目

No.99504860

3,990万円

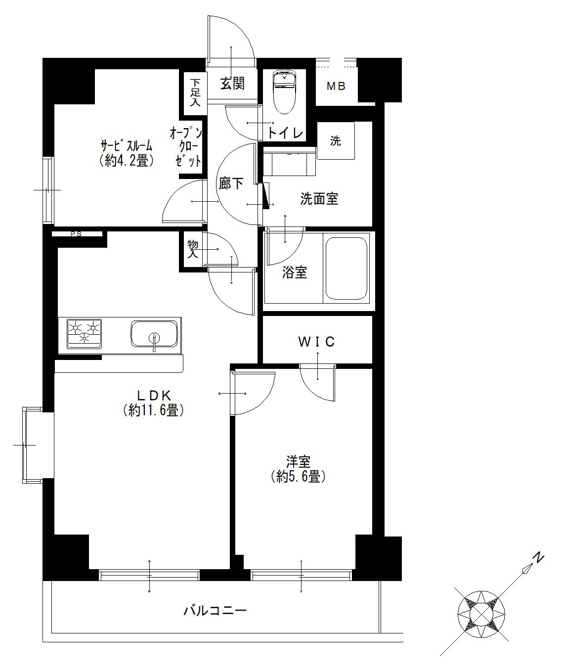
間取り
1LDK
+1S(納戸)
専有面積
50.16㎡ (15.17坪)
築年月
平成7年
2月
方角
南東

リノベーション内容

2025/11 キッチン・浴室・トイレ・壁・床・全室・給排水管・給湯器

物件概要

物件名
ダイアパレス川崎元木町 
所在地
神奈川県川崎市川崎区元木2丁目 ( 周辺地図
交通
  • 京急本線八丁畷駅 徒歩5分
  • 南武線八丁畷駅 徒歩5分
  • 京浜東北線川崎駅 徒歩15分
価格
3,990万円
間取り
1LDK
+1S(納戸)
専有面積
50.16㎡ (15.17坪)
バルコニー
面積
5.98㎡ (1.8坪)
構造・
階建て
鉄骨鉄筋コンクリート造 地上13階建て
所在階
7階
用途地域
商業/準工業
土地権利
所有権
総戸数
85戸
築年月
平成7年2月
管理費
月額14,400円
修繕積立金
月額9,630円
その他
費用
管理形態
管理会社に全部委託
引渡し
相談
取引態様
売主
おすすめ
ポイント
日当たり良好 / リノベーション済 / フローリング / バルコニー / エレベーター / 照明器具付き / 駐輪場 / 敷地内ごみ置き場 / 外観タイル張り / システムキッチン / 対面式キッチン / バス・トイレ別 / 追焚機能浴室 / 浴室乾燥機 / 温水洗浄便座 / 洗髪洗面化粧台 / ウォークインクロゼット / インターネット対応 / オートロック / TVモニタ付インターホン / 宅配ボックス / 防犯カメラ
備考

ライフインフォメーション・地図

  • ・セブンイレブン 川崎渡田山王町店 250m
  • ・まいばすけっと 日進町店 120m
  • ・京急ストア八丁畷店 350m
  • ・ドラッグセイムス 川崎京町1丁目店 600m
  • ・ラ チッタデッラ 800m
  • ・ニトリ 川崎元木店 400m
  • ・川崎市立川崎小学校 260m
  • ・川崎市立川崎中学校 550m
  • ・医療法人社団慶友会第一病院 400m
  • ・川崎京町郵便局 400m
  • ・渡田新町公園 450m

住宅ローンシミュレーション

  • 物件価格

    万円

  • 自己資金(頭金)

    万円

  • ボーナス支払い額

    万円

  • 借入期間

  • 金利(年利)

    %

  • 税込年収

    万円

月々支払額
-
返済年率
- %
  • ※シミュレーションによる試算結果は、お客さまにご入力いただいた借入条件にもとづき算出した参考値で簡易的なものです。
    実際の返済額とは異なります。
  • ※このシミュレーションは元利均等返済で試算しています
  • ※シミュレーション結果は、あくまでも目安で概算になります。実際にローン契約をする際は、詳細を金融機関にご確認ください。
  • ※実際のローン契約時には諸費用・税金(手数料や印紙税、保証料など)が別途かかりますので、契約の際にご確認ください。
  • ※シミュレーションを利用しそれが原因で利用者が受けたいかなる損害についても当社は一切責任を負いません。あらかじめご了承ください。
お問い合わせリストに追加

CONTACT

ご質問やご相談を承ります。
どうぞお気軽にお問い合わせください。

おすすめ物件情報や個別相談