コスモ向ヶ丘遊園ラフィネ 

神奈川県川崎市多摩区宿河原2丁目

No.98586798

4,790万円

間取り
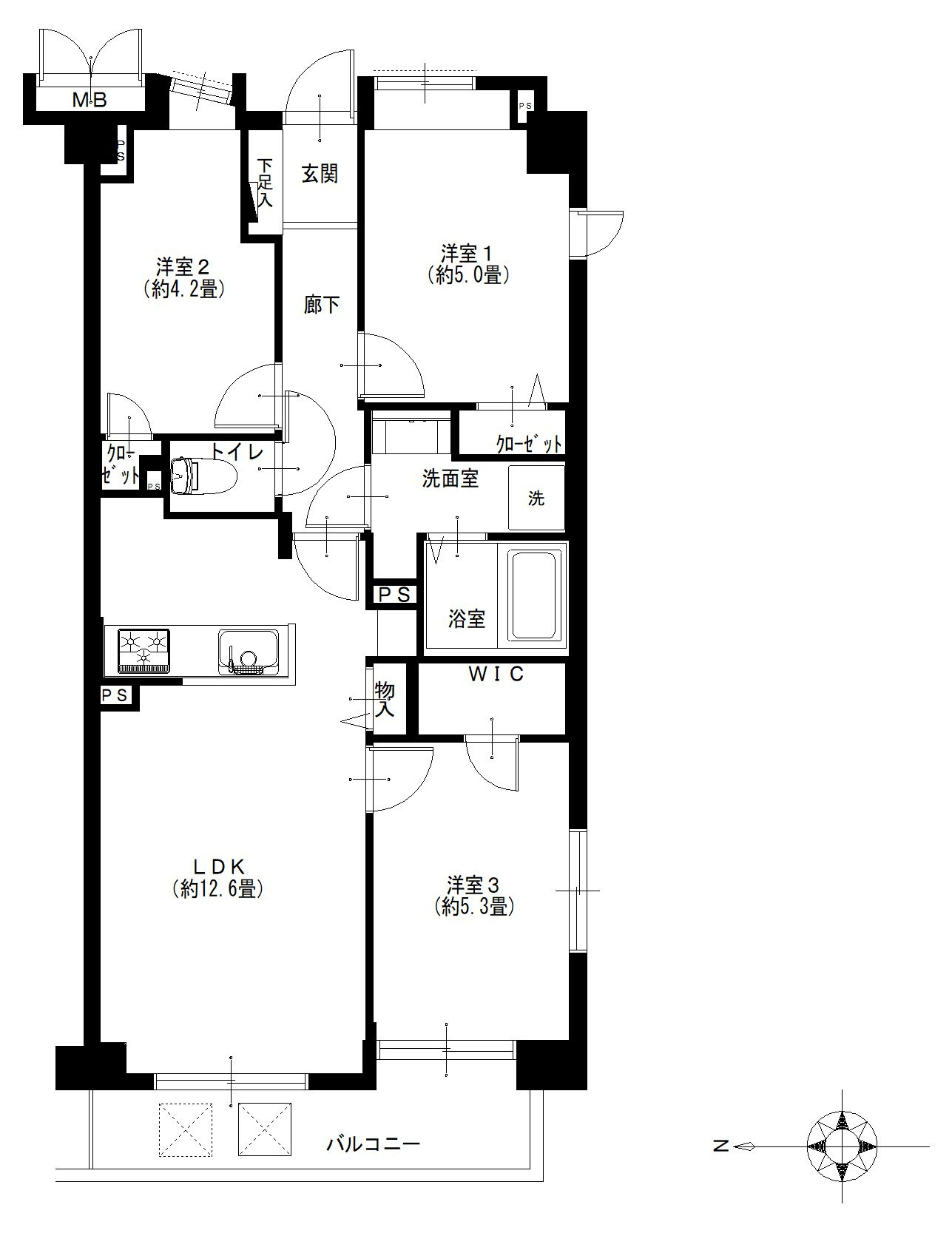
3LDK
専有面積
60.96㎡ (18.44坪)
築年月
平成7年
10月
方角
西

リノベーション内容

2025/10 キッチン・浴室・トイレ・壁・床・全室・給排水管

物件概要

物件名
コスモ向ヶ丘遊園ラフィネ 
所在地
神奈川県川崎市多摩区宿河原2丁目 ( 周辺地図
交通
  • 小田急小田原線向ヶ丘遊園駅 徒歩8分
  • 南武線登戸駅 徒歩12分
  • 小田急小田原線登戸駅 徒歩12分
価格
4,790万円
間取り
3LDK
専有面積
60.96㎡ (18.44坪)
バルコニー
面積
6.00㎡ (1.81坪)
構造・
階建て
鉄筋コンクリート造 地上5階建て
所在階
3階
用途地域
第一種中高層住居専用
土地権利
所有権
総戸数
24戸
築年月
平成7年10月
管理費
月額13,700円
修繕積立金
月額24,200円
その他
費用
町会費月:200円
管理形態
管理会社に全部委託
引渡し
相談
取引態様
売主
おすすめ
ポイント
ペット相談 / リノベーション済 / フローリング / バルコニー / エレベーター / 照明器具付き / 駐輪場 / バイク置場あり / 外観タイル張り / システムキッチン / 対面式キッチン / バス・トイレ別 / 追焚機能浴室 / 浴室乾燥機 / 温水洗浄便座 / 洗髪洗面化粧台 / ウォークインクロゼット / 収納豊富 / インターネット対応 / オートロック / TVモニタ付インターホン / 宅配ボックス / 防犯カメラ
備考

ライフインフォメーション・地図

  • ・イオンフードスタイル向ケ丘店 400m
  • ・ライフ向ケ丘遊園店 650m
  • ・クロス向ヶ丘 400m
  • ・クリエイトSD(エス・ディー) 川崎宿河原店 450m
  • ・ノジマ クロス向ケ丘店 400m
  • ・川崎市立稲田中学校 1100m
  • ・宿河原本村公園 350m

住宅ローンシミュレーション

  • 物件価格

    万円

  • 自己資金(頭金)

    万円

  • ボーナス支払い額

    万円

  • 借入期間

  • 金利(年利)

    %

  • 税込年収

    万円

月々支払額
-
返済年率
- %
  • ※シミュレーションによる試算結果は、お客さまにご入力いただいた借入条件にもとづき算出した参考値で簡易的なものです。
    実際の返済額とは異なります。
  • ※このシミュレーションは元利均等返済で試算しています
  • ※シミュレーション結果は、あくまでも目安で概算になります。実際にローン契約をする際は、詳細を金融機関にご確認ください。
  • ※実際のローン契約時には諸費用・税金(手数料や印紙税、保証料など)が別途かかりますので、契約の際にご確認ください。
  • ※シミュレーションを利用しそれが原因で利用者が受けたいかなる損害についても当社は一切責任を負いません。あらかじめご了承ください。
お問い合わせリストに追加

CONTACT

ご質問やご相談を承ります。
どうぞお気軽にお問い合わせください。

おすすめ物件情報や個別相談