キングマンション天神橋Ⅱ 

大阪府大阪市北区天神橋7丁目

No.99922285

6,290万円

間取り
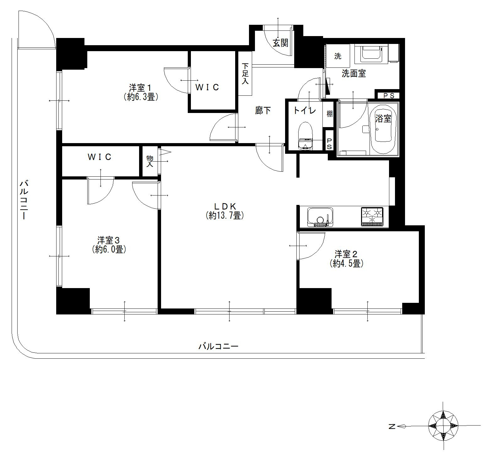
3LDK
専有面積
68.15㎡ (20.61坪)
築年月
平成10年
1月
方角
西

リノベーション内容

2026/2 キッチン・浴室・トイレ・壁・床・全室・給排水管・給湯器

物件概要

物件名
キングマンション天神橋Ⅱ 
所在地
大阪府大阪市北区天神橋7丁目 ( 周辺地図
交通
  • 地下鉄谷町線天神橋筋六丁目駅 徒歩4分
  • 阪急千里線天神橋筋六丁目駅 徒歩4分
  • 地下鉄堺筋線天神橋筋六丁目駅 徒歩4分
価格
6,290万円
間取り
3LDK
専有面積
68.15㎡ (20.61坪)
バルコニー
面積
21.55㎡ (6.51坪)
構造・
階建て
鉄筋コンクリート造 地上30階建て
所在階
25階
用途地域
商業
土地権利
所有権
総戸数
188戸
築年月
平成10年1月
管理費
月額11,250円
修繕積立金
月額14,990円
その他
費用
管理形態
管理会社に全部委託
引渡し
相談
取引態様
売主
おすすめ
ポイント
リノベーション済 / 眺望良好 / フローリング / バルコニー / エレベーター / 2面バルコニー / 照明器具付き / 駐輪場 / バイク置場あり / 外観タイル張り / 食器洗い乾燥機 / システムキッチン / バス・トイレ別 / 浴室乾燥機 / 温水洗浄便座 / 洗髪洗面化粧台 / ウォークインクロゼット / インターネット対応 / オートロック / TVモニタ付インターホン / 宅配ボックス / 防犯カメラ
備考

ライフインフォメーション・地図

  • ・ローソン 天神橋七丁目店 100m
  • ・サボイ天六味道館 160m
  • ・加納総合病院 150m
  • ・りありのきっず大阪 70m
  • ・大阪市立豊崎東小学校 700m
  • ・大阪市立豊崎中学校 350m
  • ・本庄小公園 450m

住宅ローンシミュレーション

  • 物件価格

    万円

  • 自己資金(頭金)

    万円

  • ボーナス支払い額

    万円

  • 借入期間

  • 金利(年利)

    %

  • 税込年収

    万円

月々支払額
-
返済年率
- %
  • ※シミュレーションによる試算結果は、お客さまにご入力いただいた借入条件にもとづき算出した参考値で簡易的なものです。
    実際の返済額とは異なります。
  • ※このシミュレーションは元利均等返済で試算しています
  • ※シミュレーション結果は、あくまでも目安で概算になります。実際にローン契約をする際は、詳細を金融機関にご確認ください。
  • ※実際のローン契約時には諸費用・税金(手数料や印紙税、保証料など)が別途かかりますので、契約の際にご確認ください。
  • ※シミュレーションを利用しそれが原因で利用者が受けたいかなる損害についても当社は一切責任を負いません。あらかじめご了承ください。
お問い合わせリストに追加

CONTACT

ご質問やご相談を承ります。
どうぞお気軽にお問い合わせください。

おすすめ物件情報や個別相談